Проект №2
1 424 000 руб.
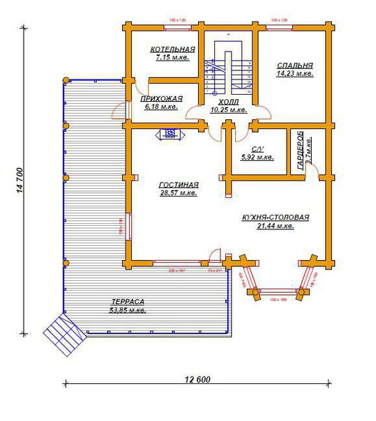
| Ширина: | 14,7 м |
| Длина: | 12,6 м |
| Количество этажей: | 2 |
Сруб из оцилиндрованного бревна:
Диаметр бревна 240 мм
Возможно изготовление сруба в других диаметров: 200мм, 220мм, 260мм, 280мм. (цена рассчитывается отдельно для каждого диаметра)
В цену сруба входит: Стропильная система, обрешетка на крышу, рубероид, балки пола, балки потолка, нагеля, межвенцовый утеплитель, антисептирование.
ЦЕНА НА ДОСТАВКУ , СБОРКУ СРУБА , РАССЧИТЫВАЕТСЯ ОТДЕЛЬНО В ЗАВИСИМОСТИ ОТ РЕГИОНА.
ТЕЛ 89535397377