Проект №4
766 000 руб.
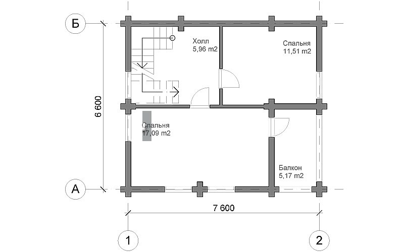
| Ширина: | 6.6 м |
| Длина: | 7.6 м |
| Количество этажей: | 2 |
Сруб из оцилиндрованного бревна:
Диаметр бревна 200 мм
Возможно изготовление сруба в других диаметров: 220мм, 240мм, 260мм, 280мм. (цена рассчитывается отдельно для каждого диаметра)
В цену сруба входит: Стропильная система, обрешетка на крышу, рубероид, балки пола, балки потолка, нагеля, межвенцовый утеплитель, антисептирование.
ЦЕНА НА ДОСТАВКУ , СБОРКУ СРУБА , РАССЧИТЫВАЕТСЯ ОТДЕЛЬНО В ЗАВИСИМОСТИ ОТ РЕГИОНА.
ТЕЛ 89535397377